Продажа квартиры в новостройке, Аксай, 3-я линия ул, 1, Ростовская область
- Регион
- Ростовская область
| Адрес | Аксай, 3-я линия ул, 1Объект на карте |
- Тип дома
- Кирпично-монолитный
- Этаж
- 2 этаж в 18-этажном доме
- Кол-во комнат
- 3
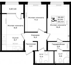
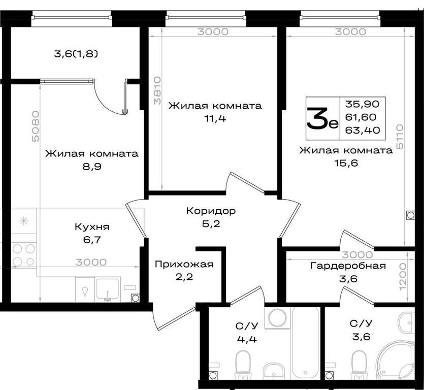
- Общая площадь
- 63.40 м2
- Жилая площадь
- 35.90 м2
- Площадь кухни
- 6.70 м2
- Дата обновления
- 22.04.2026
- Дата размещения
- 06.03.2026
Продается 3-комн. квартира, площадью 63.4 м2 в монолитно-кирпичной новостройке. Возможен вариант покупки с использованием ипотечных средств, есть рассрочка, возможна покупка с использованием материнского капитала, есть военная ипотека.
Жилая площадь 35.9 м2, кухня 6.7 м2, квартира без отделки.
Квартира располагается на 2 этаже 18-этажного дома в ЖК Придонье.
Застройщик - ГК ССК, сдача дома - II квартал 2028 года, высота потолков 2.72 м.
Дом оборудован пассажирским лифтом.
Парковка автомобилей - наземная. Обеспечение безопасности: видеонаблюдение. Инфраструктура: школа, детский сад, поликлиника, детские площадки, спортивные площадки, места для отдыха.
«Придонье» - микрорайон, куда хочется возвращаться и откуда не хочется уезжать. Здесь созданы все условия для теплой, безопасной и семейной жизни - вместе с теми, кто дорог.
Микрорайон создан для тех, кто ставит семью на первое место - здесь современные школы и детские сады расположены в шаговой доступности, а традиции добрососедства и атмосфера маленького города делают каждый день теплее и спокойнее.
АКЦИЯ:
Скидка 15 000 за /м на 13комнатные квартиры в ЖК «Придонье» при 100% оплате наличными или ипотеке.
Акция распространяется на квартиры с количеством комнат от 1 до 3 включительно при единовременной оплате либо при приобретении в ипотеку.
«Придонье» - микрорайон, куда хочется возвращаться и откуда не хочется уезжать. Здесь созданы все условия для теплой, безопасной и семейной жизни - вместе с теми, кто дорог. Микрорайон создан для тех, кто ставит семью на первое место: здесь современные школы и детские сады расположены в шаговой доступности, а традиции добрососедства и атмосфера маленького города делают каждый день теплее и спокойнее.
Данная скидка не применяется совместно с другими действующими акциями и специальными предложениями застройщика.
Позвоните и узнайте условия покупки прямо сейчас!
Жилая площадь 35.9 м2, кухня 6.7 м2, квартира без отделки.
Квартира располагается на 2 этаже 18-этажного дома в ЖК Придонье.
Застройщик - ГК ССК, сдача дома - II квартал 2028 года, высота потолков 2.72 м.
Дом оборудован пассажирским лифтом.
Парковка автомобилей - наземная. Обеспечение безопасности: видеонаблюдение. Инфраструктура: школа, детский сад, поликлиника, детские площадки, спортивные площадки, места для отдыха.
«Придонье» - микрорайон, куда хочется возвращаться и откуда не хочется уезжать. Здесь созданы все условия для теплой, безопасной и семейной жизни - вместе с теми, кто дорог.
Микрорайон создан для тех, кто ставит семью на первое место - здесь современные школы и детские сады расположены в шаговой доступности, а традиции добрососедства и атмосфера маленького города делают каждый день теплее и спокойнее.
АКЦИЯ:
Скидка 15 000 за /м на 13комнатные квартиры в ЖК «Придонье» при 100% оплате наличными или ипотеке.
Акция распространяется на квартиры с количеством комнат от 1 до 3 включительно при единовременной оплате либо при приобретении в ипотеку.
«Придонье» - микрорайон, куда хочется возвращаться и откуда не хочется уезжать. Здесь созданы все условия для теплой, безопасной и семейной жизни - вместе с теми, кто дорог. Микрорайон создан для тех, кто ставит семью на первое место: здесь современные школы и детские сады расположены в шаговой доступности, а традиции добрососедства и атмосфера маленького города делают каждый день теплее и спокойнее.
Данная скидка не применяется совместно с другими действующими акциями и специальными предложениями застройщика.
Позвоните и узнайте условия покупки прямо сейчас!








