Продажа квартиры в новостройке, Ростов-на-Дону, Элеваторный пер., 1, Ростовская область
- Регион
- Ростовская область
| Адрес | Ростов-на-Дону, Элеваторный пер., 1Объект на карте |
- Тип дома
- Кирпично-монолитный
- Этаж
- 6 этаж в 25-этажном доме
- Кол-во комнат
- 1
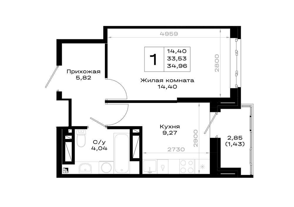
- Общая площадь
- 34.96 м2
- Жилая площадь
- 14.40 м2
- Площадь кухни
- 9.27 м2
- Дата обновления
- 22.04.2026
- Дата размещения
- 30.03.2026
Продается 1-комн. квартира, площадью 34.96 м2 в монолитно-кирпичной новостройке. Возможен вариант покупки с использованием ипотечных средств, есть рассрочка, возможна покупка с использованием материнского капитала, есть военная ипотека.
Жилая площадь 14.4 м2, кухня 9.27 м2, предчистовая отделка, комнаты изолированные.
Квартира располагается на 6 этаже 20-этажного дома в ЖК Октябрь Парк.
Застройщик - ГК ССК, сдача дома - IV квартал 2028 года.
Дом оборудован пассажирским лифтом.
Подземная парковка, парковка охраняется. Инфраструктура: детские площадки, спортивные площадки, места для отдыха, коммерческие объекты.
Этот комплекс является истинным оазисом современного комфорта и уюта, где передовые архитектурные решения идеально дополнены ландшафтными элементами и стилем. Он предлагает не просто жильё, а место для жизни в городе, известном своим гостеприимством, развитой инфраструктурой и прекрасными возможностями для досуга и бизнеса.
Дизайн, продуманный до мелочей:
оформление холлов продолжает концепцию двора и лаконично сочетается с обрамлением здания. Здесь экологичные материалы и приятные спокойные тона, разные уровни освещения, почтовые ящики, просторные колясочные и удобные
лапомойки.
АКЦИЯ:
При покупке квартиры вы получаете готовый ремонт «Стандарт» в подарок. В вашей квартире уже будет уложен ламинат, в санузле и прихожей - керамическая плитка, по периметру установлены пластиковые плинтуса в цвет пола. Стены оклеены обоями, а потолки оформлены белым матовым натяжным полотном во всех комнатах.
В ванной комнате - полный комплект сантехники: ванна, раковина и унитаз, а также плитка на стенах и полу. Электрика продумана до деталей: установлены стильные чёрные розетки и выключатели, предусмотрены выводы под светильники.
Акция действует на определенный пул квартир, уточняйте подробновти по телефону.
Важно: при выборе акции «Ремонт стандарт в подарок» дополнительные скидки и другие акции не применяются.
Аккредитованные банки: Совкомбанк, Альфа-Банк, Банк ДОМ. РФ, Промсвязьбанк, Банк ВТБ, Т-Банк, Россельхозбанк, МКБ.
Позвоните и узнайте условия покупки прямо сейчас!
Жилая площадь 14.4 м2, кухня 9.27 м2, предчистовая отделка, комнаты изолированные.
Квартира располагается на 6 этаже 20-этажного дома в ЖК Октябрь Парк.
Застройщик - ГК ССК, сдача дома - IV квартал 2028 года.
Дом оборудован пассажирским лифтом.
Подземная парковка, парковка охраняется. Инфраструктура: детские площадки, спортивные площадки, места для отдыха, коммерческие объекты.
Этот комплекс является истинным оазисом современного комфорта и уюта, где передовые архитектурные решения идеально дополнены ландшафтными элементами и стилем. Он предлагает не просто жильё, а место для жизни в городе, известном своим гостеприимством, развитой инфраструктурой и прекрасными возможностями для досуга и бизнеса.
Дизайн, продуманный до мелочей:
оформление холлов продолжает концепцию двора и лаконично сочетается с обрамлением здания. Здесь экологичные материалы и приятные спокойные тона, разные уровни освещения, почтовые ящики, просторные колясочные и удобные
лапомойки.
АКЦИЯ:
При покупке квартиры вы получаете готовый ремонт «Стандарт» в подарок. В вашей квартире уже будет уложен ламинат, в санузле и прихожей - керамическая плитка, по периметру установлены пластиковые плинтуса в цвет пола. Стены оклеены обоями, а потолки оформлены белым матовым натяжным полотном во всех комнатах.
В ванной комнате - полный комплект сантехники: ванна, раковина и унитаз, а также плитка на стенах и полу. Электрика продумана до деталей: установлены стильные чёрные розетки и выключатели, предусмотрены выводы под светильники.
Акция действует на определенный пул квартир, уточняйте подробновти по телефону.
Важно: при выборе акции «Ремонт стандарт в подарок» дополнительные скидки и другие акции не применяются.
Аккредитованные банки: Совкомбанк, Альфа-Банк, Банк ДОМ. РФ, Промсвязьбанк, Банк ВТБ, Т-Банк, Россельхозбанк, МКБ.
Позвоните и узнайте условия покупки прямо сейчас!


























